(541) 480-7711
Sign Up Login

Cleveland St, Carlton, OR 97111

$605,000

10 Total Photos [Click to View All]

Property Description

This Home is to be built in Charming Small town Carlton. Buyers will have the opportunity to select interior and exterior color schemes, including cabinetry, flooring, countertops, paint, (per builder color packages allowances). Final pricing and completion timeline may vary based on any selected upgrades and specifications. Lets start your custom home in Wine Country! Contact agent for details on available finish packages and customization options. Taxes TBD.

Cleveland St | MLS# 307525763

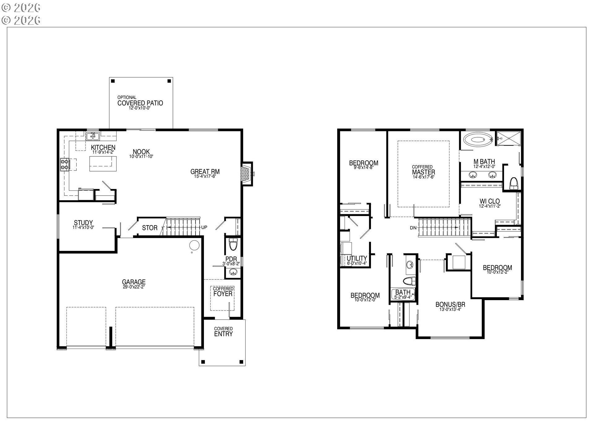
This single family home located at Cleveland St, Carlton, OR 97111 is currently listed for sale with an asking price of $605,000. This property was built in 2026 and has 5 bedrooms and 3 full baths with 2533 sq. ft. Cleveland St is located in the JR MEADOWS 3 subdivision. Search JR MEADOWS 3 real estate on sindahanson.bendpremierrealestate.com today.

Property Features

Property Type: Residential - Single Family
Basement: Crawl Space
Cooling: Heat Pump
Fenced: Yes
Fireplaces: 1
Fuel Type: Electricity
Garage: 3 car attached
Heating: Forced Air
Home Style: 2 Story, Craftsman
Roof Type: Composition
Stories: 2.0
Year Built: 2026
Square Feet: 2,533

Feature Descriptions

Bathroom: 1.0 (Main), 2.0 (Upper)
Exterior: Covered Patio, Fenced, Sprinkler, Yard
Exterior: Cement Siding, Lap Siding, Stone
Fireplace: Electric
Home Warranty: BuilderWarranty
Hot Water: Electricity
Interior: Ceiling Fan(s), Garage Door Opener, High Ceilings, Laminate Flooring, Laundry, LuxuryVinylPlank, Quartz, Soaking Tub, Wall to Wall Carpet
Kitchen: Dishwasher, Disposal, Free-Standing Range, Island, Microwave, Pantry, Plumbed For Ice Maker, Quartz, SolidSurfaceCountertop, Stainless Steel Appliance(s), Tile
Lot: Level
Parking Notes: Attached, Driveway, OnStreet
Sewer: Public Sewer
Square Footage: 1029 (Main), 1504 (Upper)
Water: Public Water

Local Schools

High School: Yamhill-Carlton
Middle School: Yamhill-Carlton
Elementary School: Yamhill-Carlton

Listed By / Shown By

Listed By

Agency Name: Berkshire Hathaway HomeServices NW Real Estate
Agency Phone: 503-538-2101

Shown By

Agent Name: Sinda Hanson, Broker
Agent Phone: (541) 480-7711
Agency Title: Bend Premier Real Estate

IDX logo

Estimate Your Payment

Estimated Payment

$ 3,235.67 per month $3,059.21 Principal & Interest $0.00 Property Tax (data not provided by mls) $176.46 Homeowner's Insurance

Change Payment Information

%
years/fixed
yearly
yearly (est.)
(Payments are an estimate and may vary by lender)
Disclaimer: All information deemed reliable but not guaranteed. All properties are subject to prior sale, change or withdrawal. Neither listing broker(s) or information provider(s) shall be responsible for any typographical errors, misinformation, misprints and shall be held totally harmless. Listing(s) information is provided for consumers personal, non-commercial use and may not be used for any purpose other than to identify prospective properties consumers may be interested in purchasing. Information on this site was last updated 04/20/2026. The listing information on this page last changed on 04/20/2026. The data relating to real estate for sale on this website comes in part from the Internet Data Exchange program of Delta Media Group MLS (last updated Mon 04/20/2026 12:00:39 AM EST) or RMLS (last updated Fri 04/17/2026 2:17:06 PM EST) or COAR/MLSCO (last updated Sun 04/19/2026 11:51:15 PM EST). Real estate listings held by brokerage firms other than Bend Premier Real Estate may be marked with the Internet Data Exchange logo and detailed information about those properties will include the name of the listing broker(s) when required by the MLS. All rights reserved.

The content relating to real estate for sale on this web site comes in part from the IDX program of the RMLS of Portland, Oregon. Real estate listings held by other brokerage firms are marked with the RMLS logo, and detailed information about these properties includes the names of the listing brokers. Listing content is copyright © 2026 RMLS, Portland, Oregon. Some properties which appear for sale on this web site may subsequently have sold or may no longer be available.

Privacy Policy / DMCA Notice / ADA Accessibility

Login to My Homefinder

Pixel